- 質量穩定:實行全過程質量監控,細致入微,全方位檢測!
- 價格合理:高效內部成本控制,減少了開支,讓利于客戶!
- 交貨快捷:先進生產流水線,充足的備貨,縮短了交貨期!
- 銷售:021-66059666
- 傳真:021-39901228
- 技術:021-39900466
產品說明
CS49H-16、S49H-16、CS49-16C、CS49H-25、CS49H-40 圓盤式蒸汽疏水閥:法蘭連接、圓盤熱動力結構形式,閥座密封面材料為 Cr13 系不銹鋼,公稱壓力 PN16~PN40,閥體材料為灰鑄鐵(CS49H-16、S49H-16)、碳鋼(CS49H-16C、CS49H-25、CS49H-40)的蒸汽疏水閥。圓盤式疏水閥用來自動排除蒸汽管道,用熱設備中的凝結水,以保證管道暢通,提高熱效率。用于石油、化工、食品、印染、紡織、醫藥等行業的蒸汽管網中的蒸汽總管、支管、汽水分離器等場合,還可用于烘房、烘箱、熱壓機等用汽設備中。
工作原理:圓盤式蒸汽疏水閥是根據伯努力熱動力原理,利用蒸汽和凝結水的熱動力學不同的特性,引起動能和勢能動靜壓變化.使動作件閥片上下壓差變化,啟動閥片開啟和關閉,從而達到阻汽排水目的。
產品性能參數
| 型號 | PN | 工作壓力/MPa | 適用溫度/℃ | 適用介質 |
|---|---|---|---|---|
| CS49H-16、 S49H-16 | 16 | 1.6 | ≤203 | 蒸汽、凝結水 |
| CS49H-16C | 16 | 1.6 | ≤203 | |
| CS49H-25 | 25 | 2.5 | ≤210 | |
| CS49H-40 | 40 | 4.0 | ≤247 |
返回頁首 ⇑
產品零部件材料
| 型號 | 材料 | |
|---|---|---|
| 閥體、閥蓋 | 閥座、閥桿、過濾網 | |
| CS49H-16、 S49H-16 | 灰鑄鐵 | 不銹鋼 |
| CS49H-16C | 碳素鑄鋼 | 不銹鋼 |
| CS49H-25 | 碳素鑄鋼 | 不銹鋼 |
| CS49H-40 | 碳素鑄鋼 | 不銹鋼 |
返回頁首 ⇑
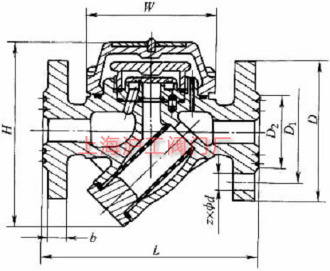
產品外形及結構尺寸
| DN | L | H | D | D1 | D2 | b | z×Φd | 重量/kg |
|---|---|---|---|---|---|---|---|---|
| 15 | 150 | 70 | 95 | 56 | 54 | 16 | 4×Φ13.5 | 4 |
| 20 | 190 | 70 | 105 | 75 | 58 | 16 | 4×Φ13.5 | 4.2 |
| 25 | 200 | 70 | 115 | 85 | 68 | 16 | 4×Φ13.5 | 4.5 |
| 32 | 230 | — | 135 | 100 | 78 | 18 | 4×Φ17.5 | 6 |
| 40 | 230 | — | 145 | 110 | 85 | 18 | 4×Φ17.5 | 8 |
| 50 | 230 | — | 160 | 125 | 100 | 20 | 4×Φ17.5 | 9 |
| 65 | 270 | — | 185 | 145 | 122 | 20 | 4×Φ17.5 | 13.5 |
| 80 | 280 | — | 200 | 160 | 133 | 22 | 4×Φ17.5 | 17.5 |
| 100 | 300 | — | 215 | 180 | 155 | 24 | 4×Φ17.5 | 20 |
返回頁首 ⇑
產品外形及結構尺寸
| DN | L | D | D1 | H | z×Φd |
|---|---|---|---|---|---|
| 15 | 150 | 95 | 65 | 105 | 4×Φ14 |
| 20 | 150 | 105 | 75 | 105 | 4×Φ14 |
| 25 | 160 | 115 | 85 | 110 | 4×Φ14 |
| 32 | 230 | 135 | 100 | 115 | 4×Φ18 |
| 40 | 230 | 150 | 110 | 125 | 4×Φ18 |
| 50 | 230 | 165 | 125 | 135 | 4×Φ18 |
返回頁首 ⇑
產品外形及結構尺寸
| DN | L | D | D1 | D2 | D6 | z×Φd | 重量/kg |
|---|---|---|---|---|---|---|---|
| 15 | 150 | 95 | 65 | 46 | 40 | 4×Φ14 | 2.7 |
| 20 | 150 | 105 | 75 | 56 | 51 | 4×Φ14 | 3.2 |
| 25 | 160 | 115 | 85 | 65 | 58 | 4×Φ14 | 3.7 |
| 40 | 230 | 150 | 110 | 84 | 76 | 4×Φ18 | 8.5 |
| 50 | 230 | 165 | 125 | 99 | 88 | 4×Φ18 | 10.5 |
返回頁首 ⇑
產品外形及結構尺寸示意圖

返回頁首 ⇑
聲明:本文中所有文字、數據、圖片均只適用于參考,CS49H-16、S49H-16、CS49-16C、CS49H-25、CS49H-40 圓盤式疏水閥性能參數、結構尺寸參數、價格等詳情,請聯系我們,電話:021-66059666。